Mitte November 2023 wurde der Gemeinde eine Petition zum Schutz des Gebiets Apfelberg eingereicht. Die Petition zählt 340 Unterstützerinnen und Unterstützer, davon 107 aus St. Margrethen. Die Petitionäre fordern faktisch die Auszonung einer seit Jahrzehnten bestehenden Baulandparzelle und begründen dies mit Natur und Landschaftsschutzargumenten.
Gutachten stützen Entscheid
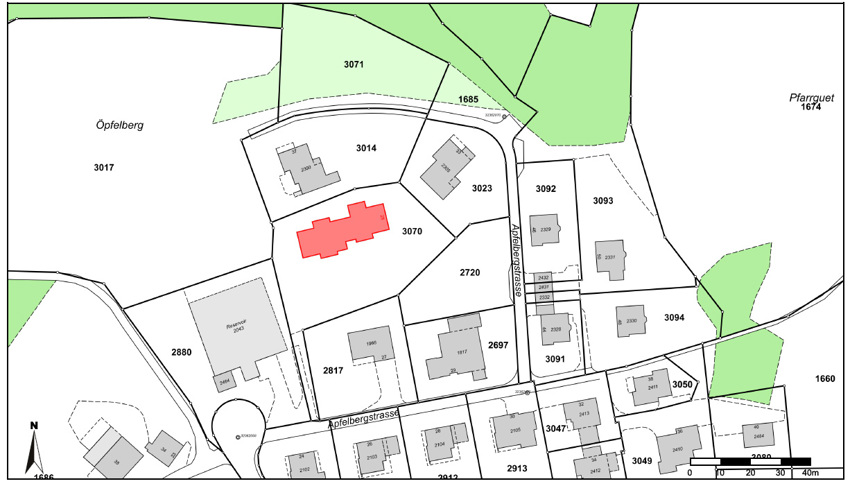
Im Wohngebiet Apfelberg laufen derzeit komplexe Einspracheverfahren gegen die Revisionen des Zonenplans und der Schutzverordnung sowie gegen ein Einfamilienhausprojekt. Diese Einsprachen verfolgen das gemeinsame Ziel, die geplante Bebauung einer Baulücke im Apfelberg zu verhindern. Die Petition dient dem gleichen Zweck, und verdient, wie verschiedene Fachgutachten bestätigen, keinen Schutz. Dies teilte der St.Margrether Gemeinderat am Dienstag mit.
 
            
        Bei der Revision der Schutzverordnung hat der Gemeinderat durch ausgewiesene Fachpersonen ein Inventar der Naturgüter in der Gemeinde erarbeiten lassen. Insgesamt wurden rund 120 Naturschutzobjekte identifiziert und im Inventar erfasst. Auf der Grundlage dieses Inventars erliess der Gemeinderat im Jahr 2019 die revidierte Schutzverordnung. Im Apfelberg wurden zwei grössere Naturschutzgebiete im Heu-büchel, ein Geotop, ein Einzelbaum, mehrere Hecken und Feldgehölze sowie weitere Einzelbäume im Inventar erfasst.
Zusätzliche Hecke aufgenommen
Auch ein Umweltverband gehört zum Kreis der Einsprecher im Apfelberg. Dieser liess im Zusammenhang mit dem bekämpften Bauprojekt ein ökologisches Fachgutachten ausarbeiten. Dieses hat lediglich eine weitere Hecke als schützenswert identifiziert, die nachträglich ins Inventar aufgenommen wurde. Weitere Schutzobjekte und schutzwürdige Lebensräume beschreibt das Gutachten nicht.
Besonders genau hingeschaut
Das noch unüberbaute Baugrundstück, das einer besonderen Betrachtung unterzogen wurde, wird im Gutachten als Talfettwiese ohne Schutzqualität beschrieben, mit Ausnahme der erwähnten Hecke.
Um die ökologische Beurteilung verschiedener unüberbauter Parzellen im Umkreis des Baugrundstücks weiter abzuklären, beauftragte der Gemeinderat ein Fachbüro mit einer zusätzlichen ökologischen Beurteilung. Dieses bestätigt das um die Hecke erweiterte Inventar und ortet keinen weiteren Handlungsbedarf.
Ein Ort wie jeder andere am Hang
Aus den Gutachten ergibt sich die Schlussfolgerung, dass sich die Landschaftskammer am Apfelberg in ökologischer und naturkundlicher Hinsicht nicht von den anderen Landschaftsräumen an den Hangbereichen oberhalb von St. Margrethen unterscheidet.
Es handelt sich um einen durchschnittlichen Landschaftsraum mit üblicher land- und forstwirtschaftlicher Bewirtschaftung und entsprechender Flora und Fauna. Das Wohngebiet entspricht der üblichen Ausprägung von Einfamilienhausquartieren.
Gemähte Rasen, fremde Pflanzen
Die Gartenanlagen bewegen sich - mit regelmässig gemähten Rasen, stark zurückgeschnittenen Lebhägen, vielen künstlichen und nicht einheimischen Gartenpflanzen - innerhalb des gängigen Durchschnitts und bilden keinen naturnahen Lebensraum.
Dem Gebiet Apfelberg kommt daher ökologisch und naturkundlich keine schutzwürdige Bedeutung im Sinne der einschlägigen Gesetzgebung zu. Weitere Schutzmass-nahmen sind deshalb abzulehnen.
 
                                             
         
         
        
Gemeinderat schaut besonders genau hin - das Urteil: Kein zusätzlicher Schutz für Apfelberg