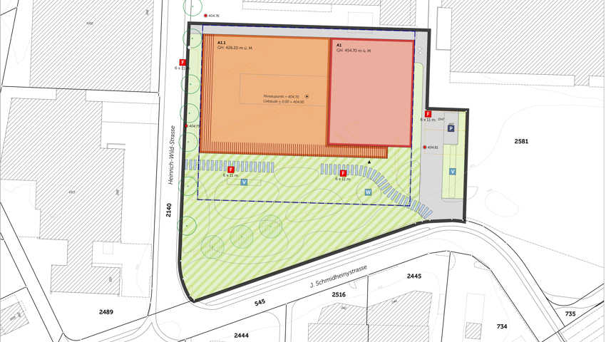
Für das Areal zwischen Heinrich-Wild-Strasse und J.Schmidheinystrasse hat der Gemeinderat Balgach am 31. März die letzten Änderungen des Sondernutzungsplans «Anker West» erlassen. Im Rahmen der öffentlichen Auflage vom 10. April bis 9. Mai gingen zwei Einsprachen ein, die zwischenzeitlich bereinigt werden konnten, teilt die Gemeinde Balgach mit.
Nun wird der Sondernutzungsplan vom 21. Juli bis 29. August (40 Tage) dem fakultativen Referendum unterstellt. Das Quorum für das Zustandekommen eines Referendumsbegehrens liegt bei 250 gültigen Unterschriften von Stimmberechtigten. Ein allfälliges Referendumsbegehren ist vor Ablauf der Referendumsfrist dem Gemeinderat Balgach, Turnhallestrasse 1, 9436 Balgach, einzureichen. Es muss eindeutig abgefasst sein und darf keine Bedingungen enthalten.
Den Sondernutzungsplan «Wild Heerbrugg Areal» genehmigte der Kanton St. Gallen 2022. Der Sondernutzungsplan «Anker West» ergänzt diesen.


Sondernutzungsplan für das Leica-Areal wird fakultativem Referendum unterstellt