Altstätten im Jodel-Fieber: 40’000 feierten Schweizer Brauchtum
Gänsehaut, Jodelklänge und applaudierende Massen: Das Städtli war am Wochenende Zentrum der heimischen Kultur.
Gänsehaut, Jodelklänge und applaudierende Massen: Das Städtli war am Wochenende Zentrum der heimischen Kultur.
Dieses Wochenende war Altstätten das Zentrum der Nordostschweiz. Jodler, Fahnenschwinger, Alphornbläser und Tausende Gäste besuchen das Städtli. Wir haben alle Bilder, Infos und Hintergründe.
An der «Rue de Blamage», der Ausgehmeile an der Trogenerstrasse, weht ein frischer Wind: Simon Walt gibt das Büezer-Pub ab, Tian Gebs übernimmt das beliebte Lokal. Und: Die Bäumli-Bar ist zurück.
«Jodeli-ho-ha»! Es ist soweit, das viel umschriebene, gross angekündigte Nordostschweizer Jodlerfest läuft dieses Wochenende vom Stapel. Wem das zu urchig wird, der kommt Musiktechnisch am Sommer im ...
Kindheit in Widnau, dann Karriere quer durch die Schweiz: Die 51-jährige Geschäftsfrau Sandra Freund spricht mit uns über ihre Unternehmerreise, Ballaststoff-Gummibärli und die ungebrochene Liebe zum ...
An der Maturafeier in Heerbrugg wurden die Maturandinnen und Maturanden zu einem kritischen Blick auf die Zukunft ermutigt. Auch FCSG-Sportdirektor Roger Stilz gab Ratschläge.
Seit der Kindheit im Audi-Fieber: Steven und Kevin sind die ultimativen Fans der Marke mit den vier Ringen. Uns haben sie verraten, warum Audi mehr als nur ein Auto für sie ist.
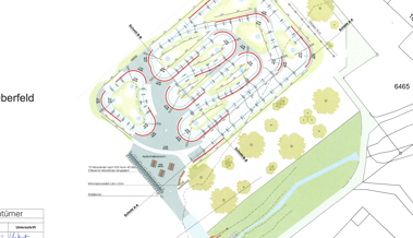
Im Februar erhielt der geplante Pumptrack die Baubewilligung, ein Kredit von rund einer halben Million Franken war dafür an der Bürgerversammlung genehmigt worden. Jetzt beginnt der Track Form ...
Wir berichten darüber!
Alle Geschichten, alle Bilder
... für nur 12 Franken im Monat oder 132 Franken im Jahr.